- エリア
東京都
- 工事期間
6ヵ月
- 竣工年月
2024年8月
- 工法
軸組工法(在来工法)
- 敷地面積
121.15㎡(36.65坪)
- 延床面積
98.12㎡(29.68坪)
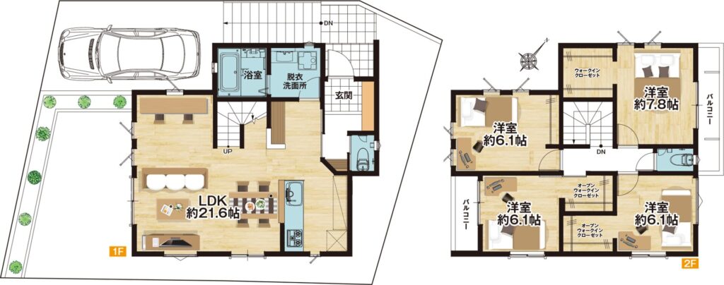
間取り図
物件概要
外観
白を基調とした洗練されたモダンなデザインが印象的な2階建て住宅。角地という立地条件を活かした開放的な配置により、道路からの視線と日当たりを両立。グレーのアクセントカラーが全体に上品な深みを与え、街並みにスタイリッシュな佇まいを演出しています。
前面には広々とした駐車スペースを配置し、車の出し入れもスムーズ。セットバックした玄関アプローチがプライバシーを保ちながら、来客を温かく迎え入れる設計となっています。
エントランス・玄関
カードキーシステムを採用した玄関は、防犯性と利便性を両立。アプローチには緑豊かな植栽を配置し、季節の変化を感じられる心地よい空間を演出しています。
玄関内部は広々としたホールに十分な収納スペースを確保。シューズクローゼットも充実しており、ご家族全員の靴をすっきりと整理できます。間接照明により上質な雰囲気を演出し、帰宅時の安らぎを提供します。
リビング・ダイニング
約21.6帖の大空間LDKは、対面式システムキッチンにより家事をしながらも家族とのコミュニケーションを大切にできる設計。豊富な自然光が室内を明るく照らし、開放感あふれる居住空間を実現しています。
リビングダイニングには床暖房を完備し、冬でも足元から温かく快適。大きな窓からは緑豊かな庭が望め、室内と屋外が一体となった心地よい空間を演出します。家族の団らんの時間を大切にできる、心地よいくつろぎの空間です。
キッチン
白基調のシステムキッチンは機能性とデザイン性を両立した設計。対面式カウンターにより、調理をしながらもリビングダイニングの家族の様子を見守ることができ、孤立感のない家事動線を実現しています。
食器洗い乾燥機やIHクッキングヒーターなど最新の設備を標準装備し、毎日の家事効率を大幅に向上。十分な作業スペースと収納力を確保しており、複数人での調理にも対応可能。キッチン背面には充実した収納スペースがあり、調味料や食器類をすっきりと整理できます。
1階に設置されたカウンタースペースは、家事コーナーとしても活用でき、お子様の宿題を見守りながら夕食の準備を進めるなど、効率的な家事動線をサポートします。
洋室
2階には4つの洋室を配置し、それぞれ異なるライフスタイルに対応可能な多機能設計。主寝室には約7.8帖の広々とした空間と、オープンウォークインクローゼットを完備。季節ごとの衣類や寝具類をすっきりと収納できます。
他の3室もそれぞれ約6.1帖の充分な広さを確保し、子供部屋や書斎、ゲストルームとしても活用可能。全居室にペアガラスを採用し、断熱性能と静寂性を向上。プライベート空間としての快適性を重視した設計となっています。
浴室・洗面室・トイレ
1階に水廻りを集約した機能的な設計により、永住を見据えた住まいを実現。システムバスルームには浴室暖房乾燥機を完備し、梅雨時期の洗濯物乾燥や冬場の予備暖房として活用できます。
三面鏡付きの洗面台は朝の身支度を効率的にサポート。鏡裏には十分な収納スペースがあり、化粧品や日用品をすっきりと整理可能。1階に洗面所を設置することで、帰宅後すぐにうがい・手洗いができる衛生的な動線を確保しています。
シャワートイレを標準装備し、清潔で快適な空間を実現。各設備とも最新の省エネ性能を有し、環境への配慮と経済性を両立しています。
庭
南側に配置された庭スペースは、ガーデニングやお子様の遊び場として多目的に活用可能。角地の特性を活かした開放的な設計により、隣家を気にせずのびのびと過ごせる空間を実現しています。
季節の花々や家庭菜園を楽しんだり、バーベキューなどのアウトドアリビングとしても活用できる自由度の高い空間。リビングからの眺めも美しく、室内と庭が一体となった心地よい住環境を提供します。
バルコニー
2階には広々としたバルコニーを配置し、洗濯物を楽々干せるワイドな設計。布団や大物の洗濯物も余裕を持って干すことができ、家事効率を大幅に向上させます。
南向きの配置により日当たりも良好で、洗濯物が良く乾く環境を確保。手すりには十分な高さを設け、安全性にも配慮。夕涼みや朝のコーヒータイムなど、ちょっとした癒しの時間を過ごせる空間としても活用できます。


















































